








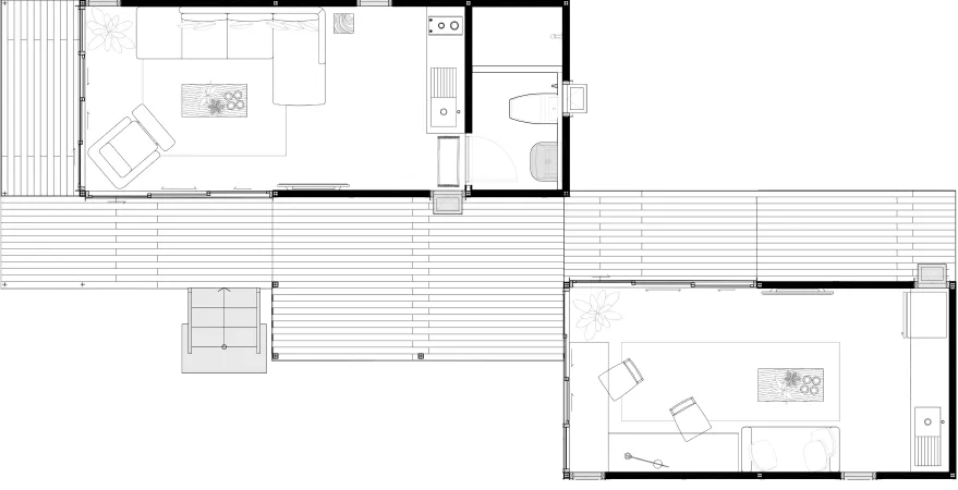
พื้นที่ใช้สอย : 43.5 ตร.ม.
- ตัวบ้าน + ห้องน้ำ 23 ตร.ม.
- ระเบียง 21 ตร.ม.

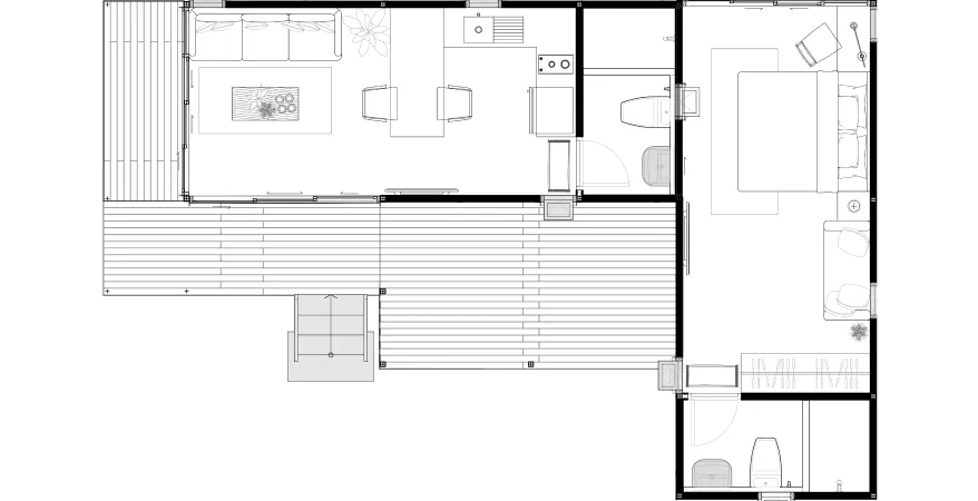
พื้นที่ใช้สอย : 47 ตร.ม.
- ตัวบ้าน + ห้องน้ำ 26 ตร.ม.
- ระเบียง 15.5 ตร.ม.
- บ้านสัตว์เลี้ยงกลางแจ้ง 5.5 ตร.ม.

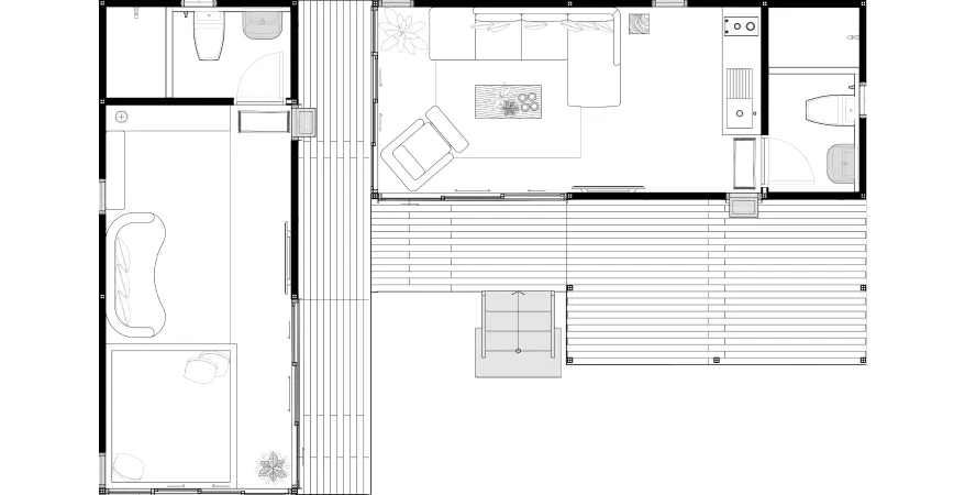
พื้นที่ใช้สอย : 82 ตร.ม.
- ตัวบ้าน + ห้องน้ำ 45.5 ตร.ม.
- ระเบียง 36.5 ตร.ม.

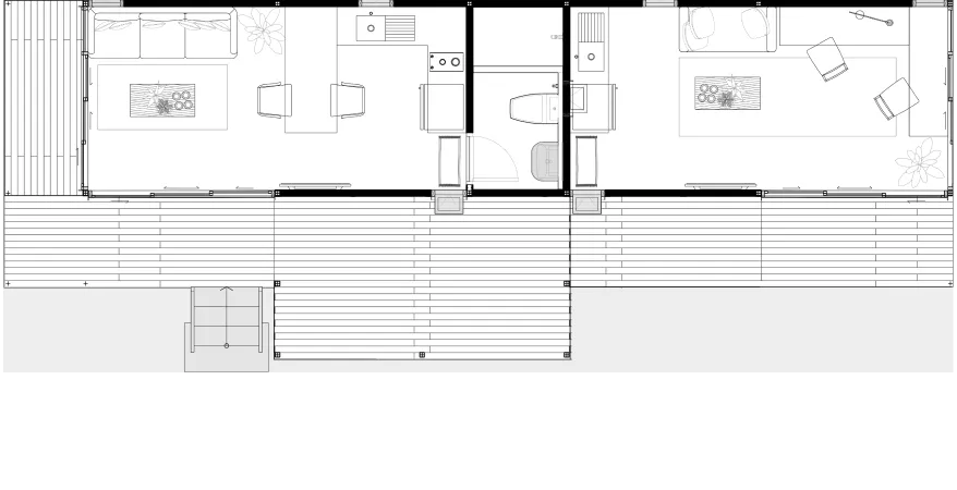
พื้นที่ใช้สอย : 123 ตร.ม.
- ตัวบ้าน + ห้องน้ำ 72 ตร.ม.
- ระเบียง 51 ตร.ม.

โครงสร้างเหล็กหนามากกว่า 2.3 มม. ได้มาตรฐาน มอก. และมีความหนามากกว่าทั่วไปถึง 1.4 เท่า เคลือบสีกันสนิมเกรดสูงจาก BEGER ทั้งระบบ GLIPTECH และ RUST GUARD (Epoxy) ในจุดที่สัมผัสแดดและฝน ควบคุมงานโดยสถาปนิกและวิศวกรระดับสามัญ จึงมั่นใจได้ในคุณภาพของโครงสร้าง ความแข็งแรง และความทนทานในระยะยาว

โครงรับพื้นวางถี่ทุก 40 ซม. เพื่อการกระจายน้ำหนักที่สม่ำเสมอและมั่นคง ปิดผิวด้วย Smart Board SCG หนา 20 มม. และ SPC Click Lock SCG หนา 5 มม. ช่วยให้พื้นแน่น แข็งแรง และเดินได้อย่างมั่นใจ

ผนังโครงเหล็กวางระยะทุก 60 ซม. เพื่อความแข็งแรง ไม่สั่น ไม่ยวบ ใช้ Smart Board SCG หนา 8 มม. สำหรับผนังภายใน และหนา 10 มม. สำหรับผนังภายนอกซึ่งหนากว่าระดับทั่วไป ช่วยให้ผนังแน่น แข็งแรง ไม่เปราะบาง เสริมด้วยฉนวนใยแก้วหุ้มฟอยล์หนา 2 นิ้ว ซ่อนภายในผนังภายนอก ช่วยลดความร้อนจากภายนอกได้อย่างมีประสิทธิภาพ

พื้นระเบียงและฝ้าภายนอกปูด้วยไม้เทียม WPC เกรดพรีเมียม ทนแดด ทนฝนและคงรูปได้ดี เก็บรอยต่อผนังด้วย CONWOOD / SHERA เพื่อความเรียบร้อยและช่วยป้องกันปัญหาน้ำซึมในระยะยาว

ประตู–หน้าต่างอลูมิเนียมลายไม้ให้ความสวยงามเสมือนไม้จริงโดยไม่ซีดจาง ใช้กระจกใสหนา 6 มม. ช่วยลดเสียงรบกวนและเพิ่มความแข็งแรง พร้อมรางลดระดับป้องกันน้ำฝนเข้าสู่ภายในเพื่อความเงียบ สบาย และแห้งสนิทในทุกสภาพอากาศ

หลังคา Metal Sheet หนา 0.4 มม. แข็งแรงกว่าทั่วไปถึง 1.35 เท่า ทนทานต่อแรงลมและฝนได้ดีพร้อมฉนวน PU หนา 1 นิ้ว ในตัวแผ่นช่วยลดทั้งความร้อนและเสียงจากฝนกระทบ ดีไซน์ลอนพิเศษช่วยเสริมภาพลักษณ์เรียบหรู มอบบรรยากาศภายในที่เย็นสบายและเงียบกว่าหลังคาทั่วไป

โครงสร้างเหล็กหนาตั้งแต่ 2.3 มม. ได้มาตรฐาน มอก. และมีความหนามากกว่าทั่วไปถึง 1.4 เท่า เคลือบสีกันสนิมเกรดสูงจาก BEGER ทั้งระบบ GLIPTECH และสีทับหน้า หนา 2 ชั้น เพื่อเพิ่มการปกป้องโครงสร้างในระยะยาว ควบคุมงานโดยสถาปนิกและวิศวกรระดับสามัญ จึงมั่นใจได้ในคุณภาพของโครงสร้าง ความแข็งแรง และความทนทานในระยะยาวของบ้านโมดูลาร์ทุกหลัง

โครงรับพื้นวางถี่ทุก 40 ซม. เพื่อการกระจายน้ำหนักที่สม่ำเสมอและมั่นคง ปิดผิวด้วย Smart Board SCG หนา 20 มม. และ SPC Click Lock SCG หนา 5 มม. ช่วยให้พื้นแน่น แข็งแรง และเดินได้อย่างมั่นใจ

ผนังโครงเหล็กวางระยะทุก 60 ซม. เพื่อความแข็งแรง ไม่สั่น ไม่ยวบ ใช้ Smart Board SCG หนา 8 มม. สำหรับผนังภายใน และหนา 10 มม. สำหรับผนังภายนอกซึ่งหนากว่าระดับทั่วไป ช่วยให้ผนังแน่น แข็งแรง ไม่เปราะบาง เสริมด้วยฉนวนใยแก้วหุ้มฟอยล์หนา 2 นิ้ว ซ่อนภายในผนังภายนอก ช่วยลดความร้อนจากภายนอกได้อย่างมีประสิทธิภาพ

พื้นระเบียงและฝ้าภายนอกปูด้วยไม้เทียม WPC เกรดพรีเมียม ทนแดด ทนฝนและคงรูปได้ดี เก็บรอยต่อผนังด้วย CONWOOD / SHERA เพื่อความเรียบร้อยและช่วยป้องกันปัญหาน้ำซึมในระยะยาว

ประตู–หน้าต่างอลูมิเนียมลายไม้ให้ความสวยงามเสมือนไม้จริงโดยไม่ซีดจาง ใช้กระจกใสหนา 6 มม. ช่วยลดเสียงรบกวนและเพิ่มความแข็งแรง พร้อมรางลดระดับป้องกันน้ำฝนเข้าสู่ภายในเพื่อความเงียบ สบาย และแห้งสนิทในทุกสภาพอากาศ

หลังคา Metal Sheet หนา 0.4 มม. แข็งแรงกว่าทั่วไปถึง 1.35 เท่า ทนทานต่อแรงลมและฝนได้ดีพร้อมฉนวน PU หนา 1 นิ้ว ในตัวแผ่นช่วยลดทั้งความร้อนและเสียงจากฝนกระทบ ดีไซน์ลอนพิเศษช่วยเสริมภาพลักษณ์เรียบหรู มอบบรรยากาศภายในที่เย็นสบายและเงียบกว่าหลังคาทั่วไป
Unwind Series ถูกออกแบบภายใต้แนวคิดการพักผ่อนที่แท้จริง เน้นดีไซน์ที่โปร่งโล่ง เชื่อมต่อพื้นที่ภายในกับธรรมชาติภายนอกอย่างลงตัว เหมาะสำหรับใช้เป็นบ้านพักตากอากาศ รีสอร์ต หรือบ้านหลังที่สองในสวนส่วนตัว
สำหรับ Unwind Series ของ Clay & Stone เรามีแบบบ้านโมดูลาร์ให้เลือกหลากหลายขนาดเพื่อตอบโจทย์งบประมาณและพื้นที่ของคุณ โดยมีรายละเอียดราคาเบื้องต้นดังนี้ (ราคารวม VAT แล้ว):
การลงทุนกับบ้านระบบโมดูลาร์ นอกจากจะได้วัสดุเกรดพรีเมียมแล้ว ยังช่วยควบคุมงบประมาณไม่ให้บานปลาย และประหยัดเวลาก่อสร้างได้มากกว่าบ้านทั่วไปอย่างมากครับ
เราขอแนะนำบ้านโมดูลาร์ Unwind 1 Bed 2 Bath ซึ่งเป็นรุ่นยอดนิยม พื้นที่ถูกจัดสรรอย่างเป็นสัดส่วน ประกอบด้วยห้องนอนพร้อมห้องน้ำในตัว ห้องน้ำส่วนกลางสำหรับแขก พื้นที่ห้องนั่งเล่นสำหรับการพักผ่อนร่วมกัน และห้องครัวสำหรับทำอาหารภายในครอบครัว ตอบโจทย์การอยู่อาศัยที่ต้องการทั้งความเป็นส่วนตัวและความสะดวกสบายในทุกวัน
บ้านสำเร็จรูปของ Clay & Stone ออกแบบมาให้ขนส่งและติดตั้งได้เกือบทุกพื้นที่ทั่วประเทศ เพียงแค่มีทางเข้าที่รถเครนหรือรถบรรทุกสามารถเข้าถึงได้ ทีมวิศวกรจะเข้าประเมินหน้างานก่อนเพื่อให้มั่นใจว่าการติดตั้งจะราบรื่นและปลอดภัยที่สุด หากวันหนึ่งคุณต้องการย้ายบ้านไปติดตั้งในที่ดินแปลงใหม่ก็สามารถทำได้โดยไม่ต้องทุบสร้างใหม่ทั้งหมด ซึ่งเป็นข้อดีหลักของ Modular System เพราะทุกโมดูลของ Unwind Series ออกแบบมาให้สามารถถอดประกอบและยกย้ายได้
ข้อดีของ บ้านโมดูลาร์ (Modular House) คือความรวดเร็ว เป็นระบบ และสามารถควบคุมคุณภาพได้อย่างมีประสิทธิภาพ โดยกระบวนการของ Clay & Stone แบ่งออกเป็น 4 ขั้นตอนหลัก ดังนี้
คุณจึงไม่ต้องเผชิญกับปัญหาการก่อสร้างยืดเยื้อ หรือความไม่แน่นอนเหมือนการสร้างบ้านแบบเดิมครับ